产品中心
进口全焊接法兰球阀
类别:美国进口阀门 发布时间:1970-01-01 08:00 浏览: 次

进口全焊接法兰球阀
描述--
ALSO全焊接法兰球阀是一种很好节能环保产品,其特点在阀门关断时内部泄漏量可达到“零泄露”状态,可使能源流失造成的损失降低到最低点。大大提高节能性与热能计量的精确度。阀门由全焊接的阀体和碳增强特氟隆密封垫组成,可以频繁操作,在有杂质及化学物质的情况下长寿命运行。研磨精细的不锈钢球体可以保证多年开闭自如,运行可靠。
进口全焊接法兰球阀
特性--
1.不需要维护,调整及润滑,易于安装,在低运行费用下长期可靠运行。
2.阀杆可以加长、易于保温。
3.操作手柄可以拆下,换向安装。
4.阀体不含沉重且不可靠的铸件。
5.为了防止静电,阀杆与球体以及阀杆与填料箱之间分别装有钢球和弹簧,可以保持阀门所有零件与阀体的导电,让电流通过区,释放静电。不仅防止火灾,而且防止腐蚀,实现临时性切断,以便及时检修。
6.阀杆防脱功能是因为阀杆受阀内压力影响,总产生脱离的力,所以阀杆设计成防脱结构。
7.用低摩擦材料的止推垫圈支撑将压力推向阀杆,使阀杆仅仅起到传递扭矩的作
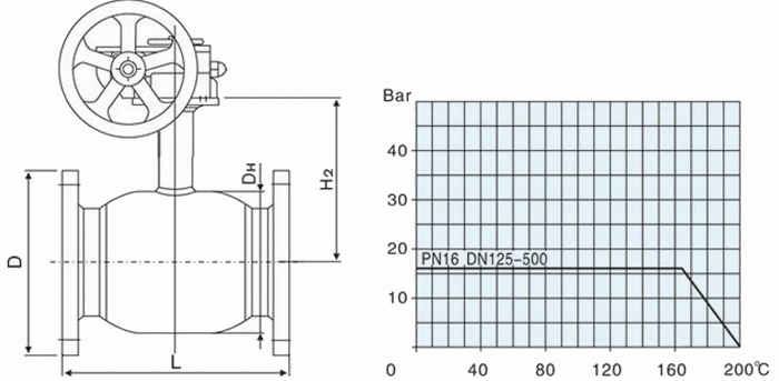
进口全焊接法兰球阀 外形尺寸--
适用范围
供暧系统、区域供热、工业用途、城市燃气
介质
水,空气,油和其它无腐蚀性的流体
法兰全焊接钢制球阀DN15-DN40
| DN | 公称直径 Bore |
DH | D | L | H1 | H2 | A | 重量kg Weight kg |
| 15 | 10 | 33 | 95 | 130 | 45 | 86 | 145 | 2.0 |
| 20 | 15 | 42 | 105 | 150 | 47 | 88 | 145 | 3.4 |
| 25 | 20 | 48 | 115 | 160 | 47 | 90 | 145 | 4.5 |
| 32 | 25 | 60 | 140 | 180 | 48 | 95 | 145 | 5.5 |
| 40 | 32 | 76 | 150 | 200 | 41 | 100 | 180 | 7 |

| DN | 公称直径 Bore |
DH | D | L | H1 | H2 | A | 重量kg Weight kg |
| 50 | 40 | 89 | 165 | 230 | 40 | 105 | 250 | 9 |
| 65 | 50 | 108 | 185 | 270 | 40 | 115 | 275 | 11 |
| 80 | 65 | 133 | 200 | 280 | 50 | 135 | 275 | 13 |
| 100 | 80 | 159 | 220 | 300 | 55 | 155 | 365 | 22 |

| DN | 公称直径 Bore |
DH | D | L | H1 | H2 | ds | i | 重量kg Weight kg |
| 125 | 100 | 193 | 250 | 325 | 75 | 172 | 24 | 40 | 32 |
| 150 | 125 | 219 | 285 | 350 | 80 | 190 | 30 | 50 | 45 |
| 200 | 150 | 273 | 340 | 400 | 80 | 217 | 30 | 60 | 68 |
| 250 | 200 | 351 | 405 | 520 | 80 | 256 | 50 | 84 | 140 |
| 300 | 250 | 425 | 460 | 630 | 90 | 303 | 60 | 105 | 210 |
| 350 | 300 | 508 | 520 | 650 | 90 | 345 | 60 | 110 | 335 |
| 400 | 350 | 610 | 580 | 760 | 105 | 410 | 70 | 120 | 550 |
| 500 | 400 | 680 | 715 | 910 | 120 | 460 | 90 | 150 | 860 |


